چکیده
زمانی که به قصد خرید توالت فرنگی وال هنگ روانه بازارهای مصرف شوید به این نتیجه می رسید که انتخاب درست این سازه در گرو آنالیز پارامترهای مختلفی است که یکی از مهم ترین آنها ابعاد سازه است. شاید فکر کنید که تعیین درست این مقوله کار چندان سختی نیست و حتما حداقل و حداکثری برای آن وجود دارد. اما اوضاع زمانی پیچیده تر می شود که هر یک از بخش های والهنگ دارای اندازه های متفاوتی باشند. در ادامه این مطلب با بررسی ابعاد توالت فرنگی وال هنگ به شما کمک می کنیم تا این پروسه نسبتا دشوار را با راحتی بیشتری طی کنید.
بررسی ابعاد کلی وال هنگ
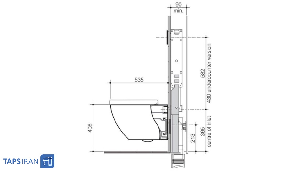
با دقت به وال هنگ تان نگاه کنید. شکل کلی این سازه از سه وجه طول، عرض و ارتفاع ساخته شده است. با توجه به بررسی هایی که انجام داده ایم طول این اقلام بین ۵۰ تا ۶۰ سانتیمتر است. در حالی که عرض از آن از ۳۵ تا ۴۰ سانتی متر متغیر است. بدیهی است که این مقدار با توجه به نوع وال هنگ و البته اندازه کلی سرویس شما تعیین می شود. عمده وال هنگ ها ارتفاع شان بین ۳۰ الی ۴۰ سانتی متر است. چرا که بیشتر بودن این رقم خود می تواند باعث اشغال هر چه بیشتر فضای سرویس باشد. در ادامه به بررسی سایر وجهه های ابعاد وال هنگ می پردازیم.
- اندازه مخزن: مخزن وال هنگ خود از دو بخش طول و عرض تشکیل شده است. طول این مورد معمولا ۸۰ الی ۱۱۰ میلی متر است. در حالی که این مقدار در عرض آن به ۵۵۰ میلی متر افزایش پیدا می کند.
- فاصله میان پیچ ها: همه ی پیچ های وال هنگ دارای نوع رزوه هستند که محل قرارگیری آنها با توجه به ابعاد توالت فرنگی وال هنگ و محل قرارگیری آن متفاوت است. با این حال فاصله میان دو پیچ در سازه باید بین ۱۸ تا ۲۲ سانتی متر باشد.
- فواصل مربوط به لوله کشی: غیر قابل حدس است اما اندازه های کلی وال هنگ بخش لوله کشی را هم درگیر می کند. در اینجا فاصله لوله کشی تا کف ۲۲ سانتی متر است. در حالی که قطر لوله ها می تواند از ۹۰ تا ۱۱۰ واحد متغیر باشد.
چرا تعیین ابعاد دقیق ابعاد وال هنگ مهم است؟
تعیین ابعاد دقیق وال هنگ پیش از تهیه و نصب آن بسیار مهم است. چرا که اندازه این سازه باید با کلیات یک سرویس بهداشتی همخوانی داشته باشد. به طور مثال انتخاب یک وال هنگ بسیار بزرگ در فضایی اندک موجب اتلاف متراژ در دسترس می شود. افزون بر آن نا هماهنگی ایجاد شده تاثیر منفی بر زیبایی مکان می گذارد.
اگر این اندازه ها دقیق نباید نه تنها نظم و زیبایی ظاهری محدوده دچار چالش می شود، بلکه پروسه نصب و جایگذاری آن نیز ممکن است با مشکلاتی رو به رو شود. در این حالت نصب غیر اصولی و ایمنی اندک وال هنگ انتخابی تان نمی تواند دور از ذهن باشد. انتخاب درست ابعاد وال هنگ در تاثیر مثبتی بر لوله کشی سازه می گذارد. چرا که در این حالت اتصالات مختلف به راحتی به یکدیگر وصل می شوند. البته که رعایت این اصل می تواند به راحتی هر چه بیشتر کاربر در حین استفاده از سرویس کمک کند. به عبارتی ابعاد کوچک یا بزرگ وال هنگ می تواند کارایی و کاربری سازه را نیز تحت شعاع قرار دهد.

ابعاد وال هنگ برای استفاده استاندارد در سرویس بهداشتی
اگر سرویس بهداشتی خانه شما کوچک است، برای بهرهمندی از فضا خرید توالت وال هنگ را توصیه میکنیم. این توالتها طراحی مینیمال یا اصطلاحا کوچکی دارند و فضای خیلی کمی از سرویس بهداشتی را اشغال میکنند. ابعاد استاندارد توالت وال هنگ به قرار زیر است:
· عرض کاسه وال هنگ
عرض کاسه دیواری باید به اندازه کافی برای استفاده تمام افراد باشد. از کودکان تا انسانهای بزرگ جثه باید به راحتی روی این توالتها بنشینند. عرض توالت استاندارد وال هنگ ۵۵ سانتیمتر است که از لبههای چهارچوب آن محاسبه میشود.
· ارتفاع نصب کاسه وال هنگ
اگرچه توالتهای وال هنگ بر روی دیوار سرویس بهداشتی نصب میشوند، اما قرار نیست که در ارتفاع غیر استاندارد و غیر کاربردی قرار بگیرند. ارتفاع استاندارد نصب توالت وال هنگ از کف سرویس بهداشتی تا روی لبه نشیمنگاه آن در محدوده ۴۰ الی ۵۵ سانتیمتر است. ارتفاع نصب را با توجه به میانگین قد اعضای خانواده پیش بینی کنید.
برای تنظیم ارتفاع نصب نیز از استراکچرهای استاندارد با قابلیت تنظیم ارتفاع استفاده میکنند. این استراکچر به شکلی طراحی شده است که میتوانید موقعیت نصب توالت و ارتفاع لبه آن تا کف سرویس بهداشتی را در بازه ۱۵ الی ۲۰ سانتیمتر جابجا کنید. در این صورت حتی میتوانید لبه توالت را برای استفاده افراد بسیار قد بلند تا ارتفاع ۶۵ سانتیمتر و برای استفاده کودکان مانند مهد کودکها تا ارتفاع حداقل ۳۵ سانتیمتر از کف تنظیم کنید.
· ضخامت جداره نصب استراکچر
استراکچر توالت را باید در عمق ۸ الی ۱۲ سانتیمتری دیوار سرویس بهداشتی نصب کنید. اگر از فلاشتانکهای توکار نیز استفاده میکنید، عمق نصب استراکچر توالت دیواری و فلاشتانک توکار یکسان است. این مقدار کاملا ایدهآل برای نصب تجهیزات در دیوارهای نازک سرویس بهداشتی آپارتمانی پیش بینی شده است.
چه عواملی در تعیین ابعاد توالت فرنگی وال هنگ دخیل هستند؟
عوامل مختلفی می توانند در تعیین ابعاد وال هنگ موثر باشند که مدل و برند سازه یکی از مهم ترین آنها است. بدیهی است که تولیدکنندگان مختلف اندازه های متغیری را برای محصولات شان تعیین می کنند. البته این تعیین اندازه می تواند در گرو متراژ سرویس بهداشتی نیز باشد. گاهی اوقات این فضا بسیار بزرگ یا بسیار کوچک است که افراد را به تهیه وال هنگ هایی با اندازه خاص وادار می کند. لازم به ذکر است که طراحی این کالا نیز تا حد زیادی در مشخص کردن ابعاد وال هنگ اثر گذار است. مثلا نمونه های مینیمال دارای اندازه های کوچکی هستند در حالی که وال هنگ کلاسیک ابعاد بزرگ تری دارد.
نکات مهم در تعیین ابعاد توالت فرنگی وال هنگ
پیش از هر اقدامی، ابتدا اندازه های کلی سرویس بهداشتی خودتان را بررسی کرده، و تعیین کنید که حداقل و حداکثر ابعاد مناسب وال هنگ شما چقدر است. بهتر است در این حین لوله کشی ها و سایر اتصالات این دسته را آنالیز کنید تا به نحوی از استاندارد بودن آنها مطمئن شوید. بررسی دقیق آکس توالت نیز باید همزمان با این کارها انجام شود. فراموش نکنید که انتخاب یک عرضه کننده معتبر تا حد زیادی در این حین موثر است. چرا که یک فروشنده قابل اعتماد ضمن ایجاد تنوعی بالا، کالاهایی را به شما عرضه می کند که علاوه بر داشتن کیفیت ساختاری ابعاد استانداردی هم داشته باشند. مجموعه بزرگ تپس ایران مثال واضحی در این باره است. این واحد تجاری می تواند با بررسی بودجه، نیازها و شرایط کلی شما بهترین وال هنگ را به شما معرفی، و ابعاد مناسب آن را نیز برایتان تعیین کند.